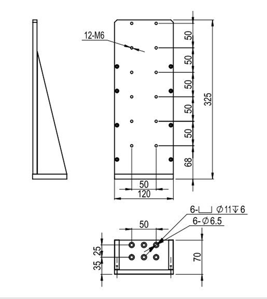
尺寸图: